Choose a different country or region to see the content specific to your location
How can we help you?
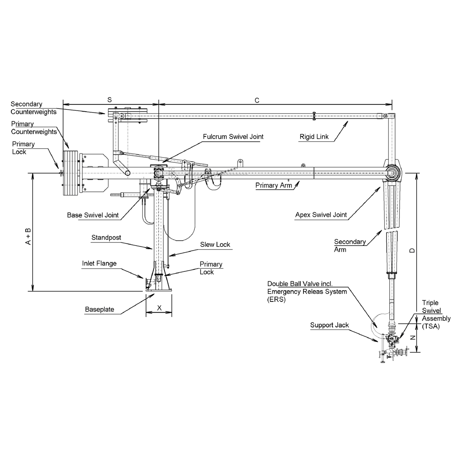
Our B0300 Marine Loading Arm has been designed for any application where it is essential to keep the product pipe consistently the same size for either economical or technical reasons, e.g. cryogenic products down to -168 °C, piggable systems and PTFE-lining.
This design has proven its reliability for many years.
The B0300 design includes a special support structure for the standpost, inboard and outboard arm and separates any mechanical loads imposed to the product pipe, except the dead-weight and internal pressure loads.
Additionally this provides optimum operational safety aspects, low weight of the arm and lowest wind loads imposed on the jetty structure.
Balancing of the arm is achieved by a rigid link pantograph system with independent counterweights directly linked to the inboard and outboard arm. This ensures accurate balance throughout all maneuvering and connecting positions.
The advantages over hose loading facilities are:
ABOUT EMCO WHEATON
For more than 100 years, Emco Wheaton has provided premium fluid transfer systems that are engineered t omeet and exceed the growing demands of our customers across a range of on- and off-shore industries; including gas, chemical, aviation, storage and transportation. We take pride in servicing a global customer base by offering a range of market leading loading and fuel systems that have been engineered using extensive experience, expertise, and a culture of innovation. Backed by our first class service and support, only Emco Wheaton can provide our customers with the quality, safety, and peace of mind needed to help them drive their operations into the future.