Germany (DE)
Wählen Sie ein anderes Land oder eine andere Region aus, um die für Ihren Standort spezifischen Inhalte anzuzeigen
How can we help you?
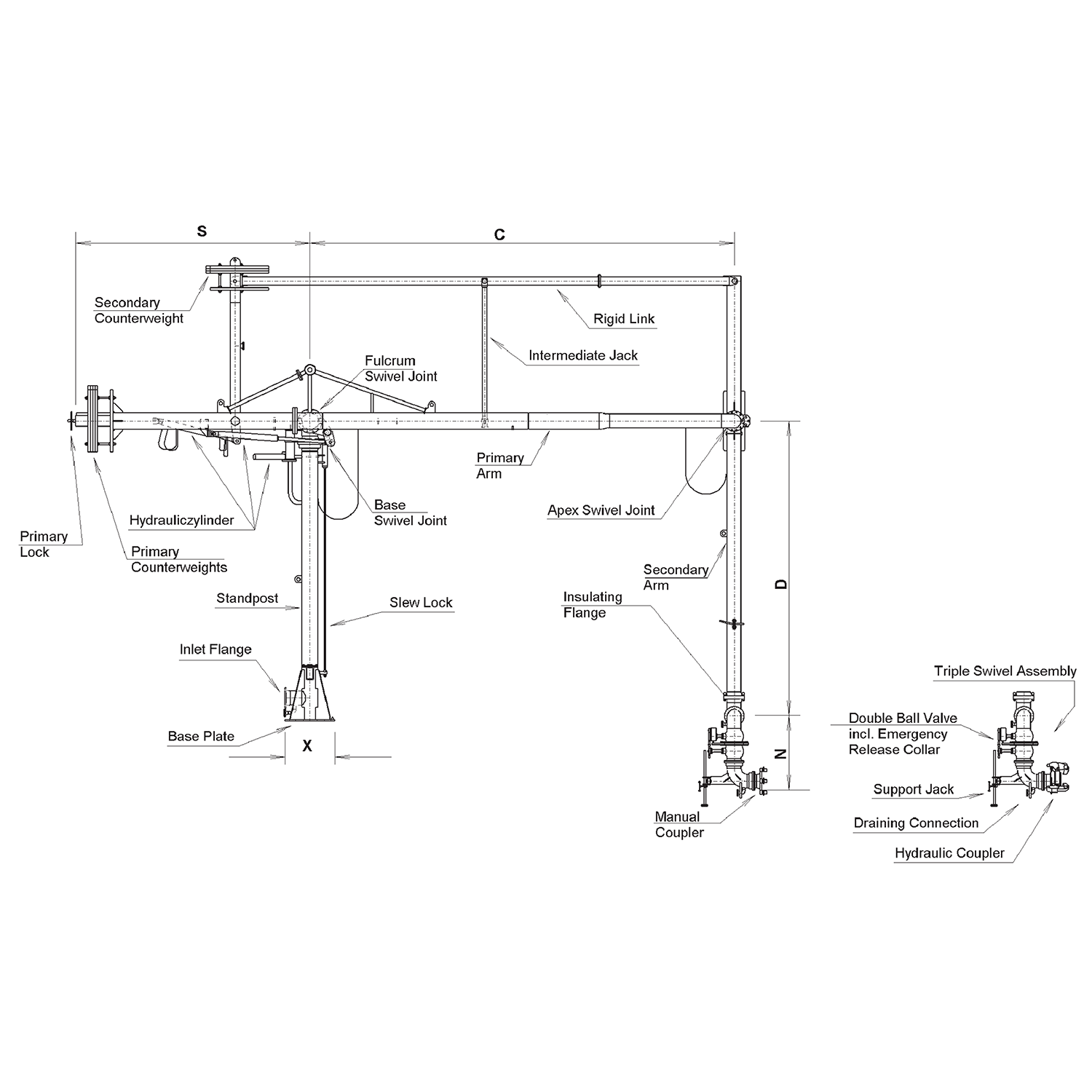
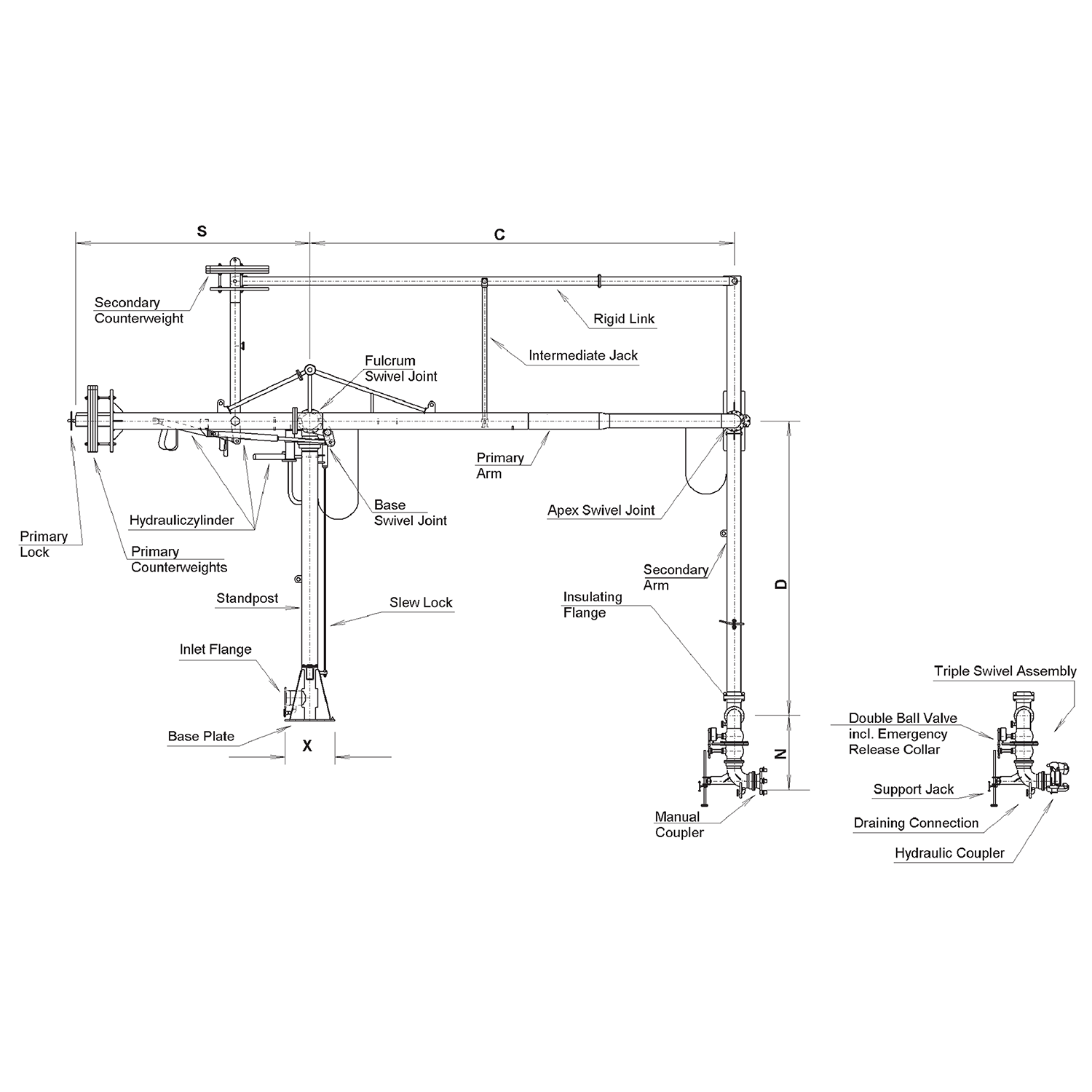
Der B0030 Schiffsverlader wird seit vielen Jahren weltweit erfolgreich und störungsfrei bei der Be- und Entladung von Tankschiffen eingesetzt.
Der B0030 verfügt über ein starres Pantograph-System mit zwei separaten Gegengewichten für Innen- und Außenarm. Durch dieses System bleibt der Schiffsverlader in allen Manövrierpositionen jederzeit vollständig ausbalanciert.
Die selbsttragende Konstruktion bietet nicht nur höchste Sicherheit beim Betrieb, sondern optimiert auch das Gewicht und die Kräfte, die auf das Stegfundament wirken, was wiederum die Kosten für das Fundament minimiert.
Gegenüber der Verladung mit Schläuchen überzeugt der B0030 Schiffsverlader durch:
Größen:
Druckstufen:
Werkstoffe:
Temperaturbereich:
Wir bieten gerne kundenspezifische Lösungen auf Anfrage.
ÜBER EMCO WHEATON
Seit mehr als 100 Jahren bietet Emco Wheaton erstklassige Flüssigkeitstransfersysteme an, die die wachsenden Anforderungen unserer Kunden in einer Reihe von On- und Offshore-Industrien erfüllen und übertreffen, darunter Gas, Chemie, Luftfahrt, Lagerung und Transport. Wir sind stolz darauf, Kunden auf der ganzen Welt zu beliefern und ihnen eine breite Palette an branchenführenden Verlade- und Betankungssystemen zu bieten, die mit unserer riesigen Erfahrung, Know-how und ständiger Innovation entwickelt wurden. Mit unserem erstklassigen Service und Support kann nur EMCO WHEATON unseren Kunden die Qualität und Sicherheit bieten, mit der sie absolut beruhigt ihre Tätigkeiten auch in der Zukunft ausüben können.