Brazil (PT)
Escolha um país ou região diferente para ver o conteúdo específico de sua localização
How can we help you?
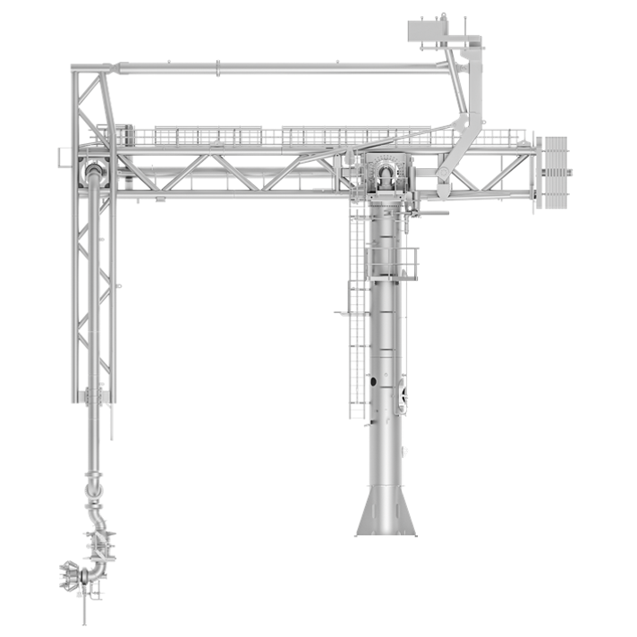
Nosso braço de carregamento marítimo B0300 foi projetado para qualquer aplicação em que seja essencial manter o tubo do produto sempre do mesmo tamanho por motivos econômicos ou técnicos, por exemplo, produtos criogênicos até -168 °C, sistemas pigáveis e revestimento de PTFE.
Esse design tem comprovado sua confiabilidade por muitos anos.
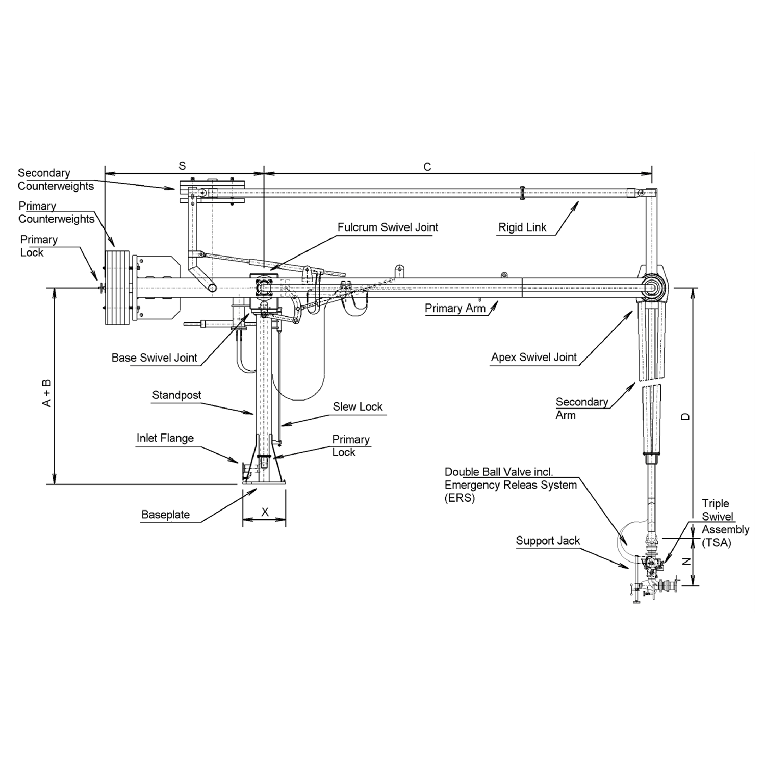
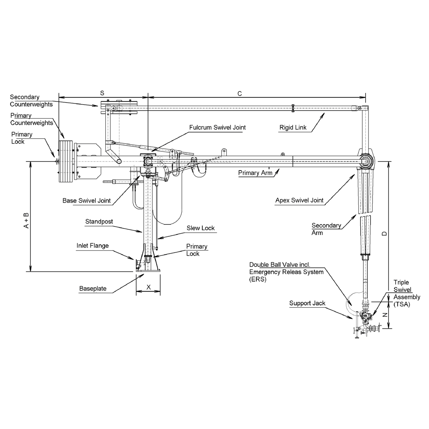
O projeto B0300 inclui uma estrutura de suporte especial para o suporte, braço interno e externo e separa todas as cargas mecânicas impostas ao tubo do produto, exceto as cargas de peso morto e de pressão interna.
Além disso, isso proporciona ótimos aspectos de segurança operacional, baixo peso do braço e menores cargas de vento impostas à estrutura do píer.
O balanceamento do braço é obtido por um sistema de pantógrafo de ligação rígida com contrapesos independentes diretamente ligados ao braço interno e externo. Isso garante o balanceio preciso em todas as posições de manobra e conexão.
As vantagens sobre os recursos de carga de mangueira são:
DESENHO
O projeto B0300 inclui uma estrutura de suporte especial para o suporte, braço interno e externo e separa todas as cargas mecânicas impostas ao tubo do produto, exceto as cargas de peso morto e de pressão interna.
Além disso, isso proporciona ótimos aspectos de segurança operacional, baixo peso do braço e menores cargas de vento impostas à estrutura do píer.
O balanceamento do braço é obtido por um sistema de pantógrafo de ligação rígida com contrapesos independentes diretamente ligados ao braço interno e externo. Isso garante o balanceio preciso em todas as posições de manobra e conexão.
As vantagens sobre os recursos de carga de mangueira são:
DESENHO
ABOUT EMCO WHEATON
For more than 100 years, Emco Wheaton has provided premium fluid transfer systems that are engineered t omeet and exceed the growing demands of our customers across a range of on- and off-shore industries; including gas, chemical, aviation, storage and transportation. We take pride in servicing a global customer base by offering a range of market leading loading and fuel systems that have been engineered using extensive experience, expertise, and a culture of innovation. Backed by our first class service and support, only Emco Wheaton can provide our customers with the quality, safety, and peace of mind needed to help them drive their operations into the future.