Portugal (PT)
Escolha um país ou região diferente para ver o conteúdo específico da sua localização
How can we help you?
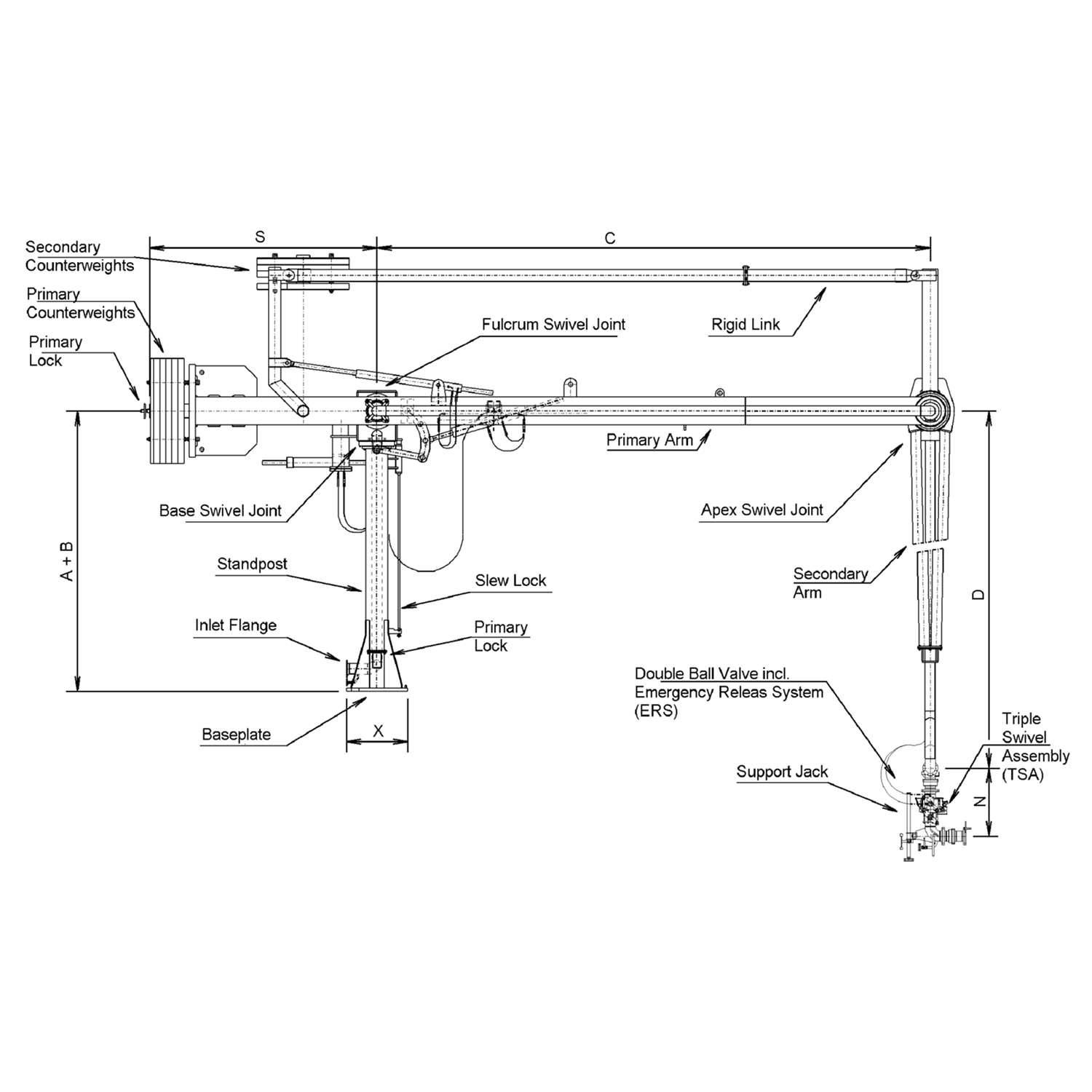
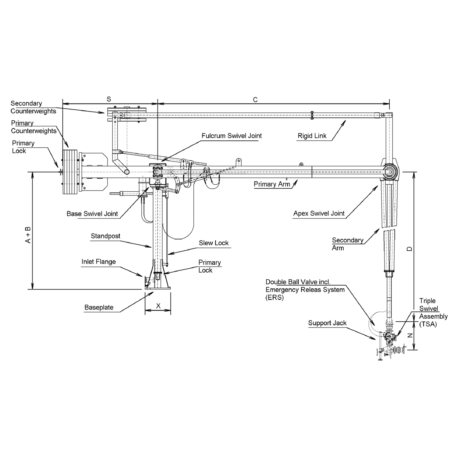
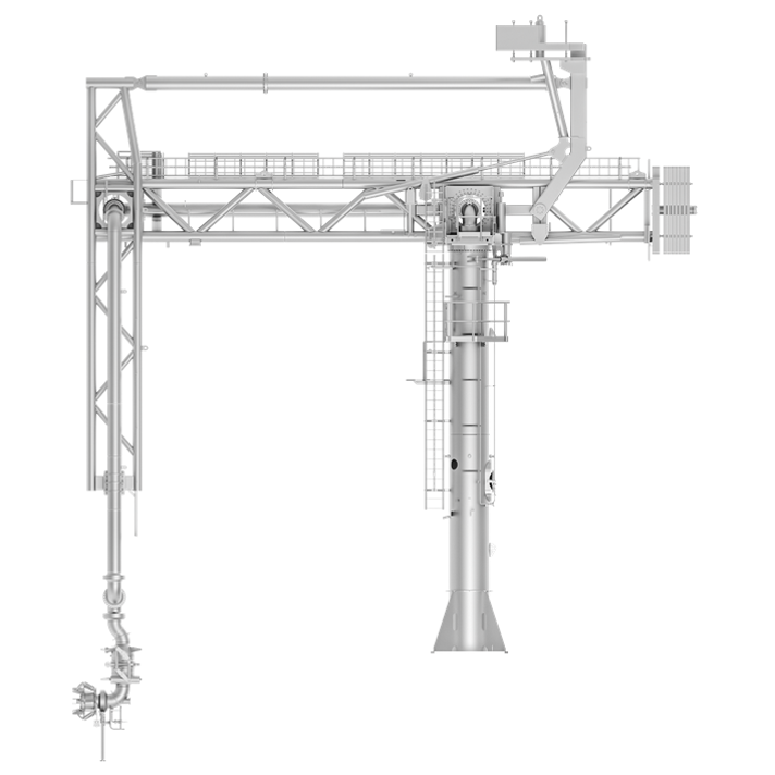
O nosso Braço de Carga Marítimo B0300 foi concebido para qualquer aplicação em que seja essencial manter a tubagem do produto sempre do mesmo tamanho por razões económicas ou técnicas, por exemplo, produtos criogénicos até -168 °C, sistemas pigáveis e revestimento PTFE.
Esse design tem comprovado sua confiabilidade por muitos anos.
A conceção da B0300 inclui uma estrutura de suporte especial para a coluna, o braço interior e o braço exterior e separa todas as cargas mecânicas impostas ao tubo do produto, exceto as cargas de peso próprio e de pressão interna.
Além disso, isto proporciona aspectos óptimos de segurança operacional, baixo peso do braço e menores cargas de vento impostas à estrutura do cais.
O equilíbrio do braço é conseguido por um sistema de pantógrafo de ligação rígida com contrapesos independentes diretamente ligados ao braço interior e exterior. Isso garante o balanceio preciso em todas as posições de manobra e conexão.
As vantagens sobre os recursos de carga de mangueira são:
DESENHO
A conceção da B0300 inclui uma estrutura de suporte especial para a coluna, o braço interior e o braço exterior e separa todas as cargas mecânicas impostas ao tubo do produto, exceto as cargas de peso próprio e de pressão interna.
Além disso, isto proporciona aspectos óptimos de segurança operacional, baixo peso do braço e menores cargas de vento impostas à estrutura do cais.
O equilíbrio do braço é conseguido por um sistema de pantógrafo de ligação rígida com contrapesos independentes diretamente ligados ao braço interior e exterior. Isso garante o balanceio preciso em todas as posições de manobra e conexão.
As vantagens sobre os recursos de carga de mangueira são:
DESENHO
ABOUT EMCO WHEATON
For more than 100 years, Emco Wheaton has provided premium fluid transfer systems that are engineered t omeet and exceed the growing demands of our customers across a range of on- and off-shore industries; including gas, chemical, aviation, storage and transportation. We take pride in servicing a global customer base by offering a range of market leading loading and fuel systems that have been engineered using extensive experience, expertise, and a culture of innovation. Backed by our first class service and support, only Emco Wheaton can provide our customers with the quality, safety, and peace of mind needed to help them drive their operations into the future.