Russia (RU)
Выберите другую страну или регион, чтобы увидеть материалы, относящиеся к вашему местоположению
How can we help you?
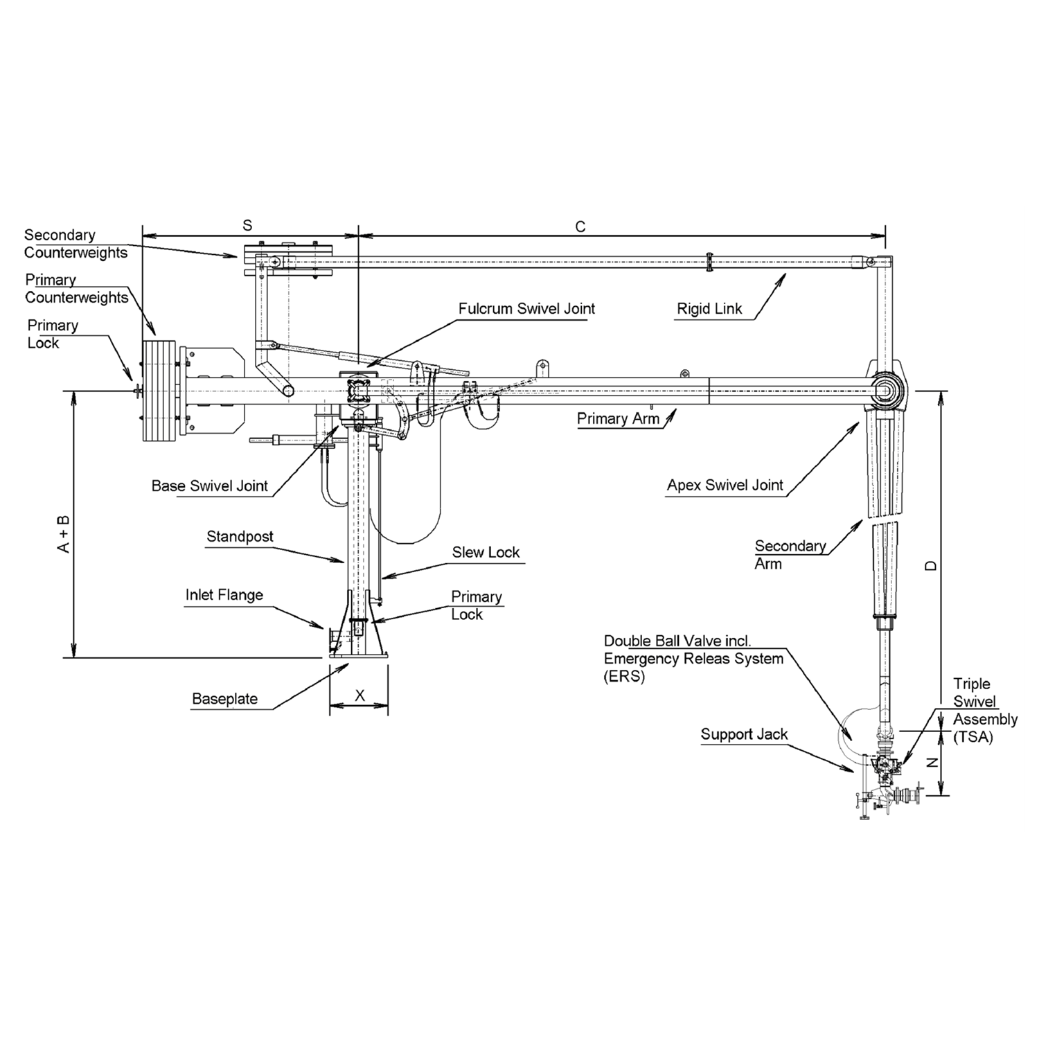
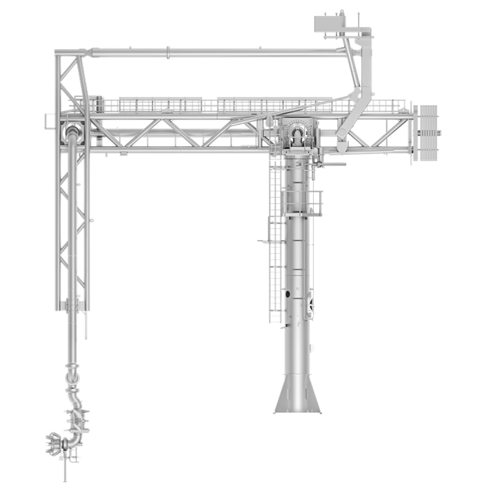
Наш морской погрузочный манипулятор B0300 был разработан для любых применений, где по экономическим или техническим причинам необходимо, чтобы труба с продуктом была одного размера, например, криогенные продукты до -168 °C, скребковые системы и PTFE-обшивка.
Эта конструкция доказала свою надежность в течение многих лет.
Конструкция B0300 включает в себя специальную опорную конструкцию для стойки, внутреннего и внешнего рычага и разделяет любые механические нагрузки, приложенные к трубе с продуктом, за исключением нагрузки собственного веса и внутреннего давления.
Кроме того, это обеспечивает оптимальную безопасность эксплуатации, малый вес стрелы и наименьшую ветровую нагрузку на конструкцию причала.
Балансировка стрелы достигается за счет жесткой системы пантографа с независимыми противовесами, непосредственно связанными с внутренним и внешним рычагом. Это обеспечивает точный баланс во всех положениях маневрирования и соединения.
Преимуществами по сравнению с установками для загрузки шлангов являются:
ДИЗАЙН
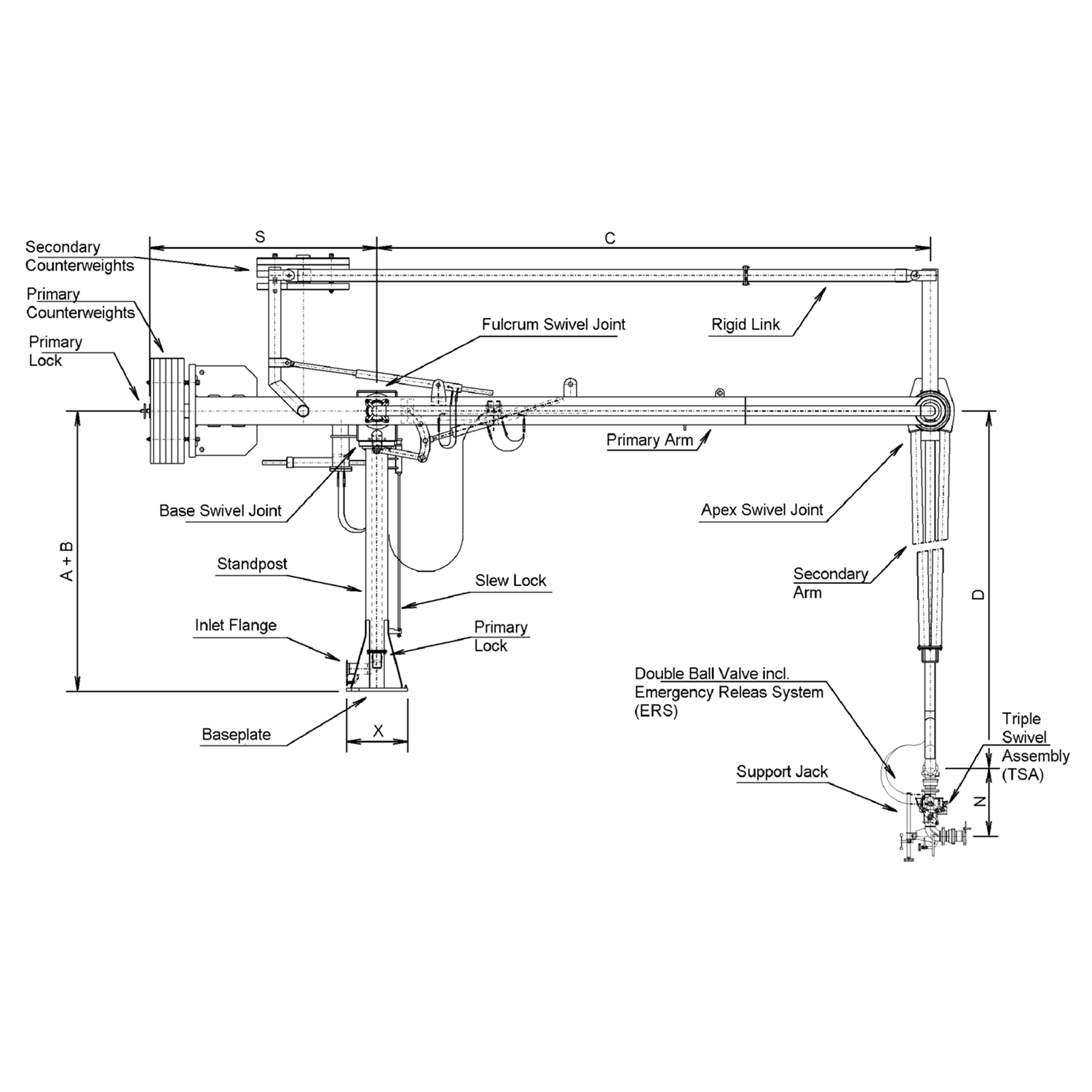
Конструкция B0300 включает в себя специальную опорную конструкцию для стойки, внутреннего и внешнего рычага и разделяет любые механические нагрузки, приложенные к трубе с продуктом, за исключением нагрузки собственного веса и внутреннего давления.
Кроме того, это обеспечивает оптимальную безопасность эксплуатации, малый вес стрелы и наименьшую ветровую нагрузку на конструкцию причала.
Балансировка стрелы достигается за счет жесткой системы пантографа с независимыми противовесами, непосредственно связанными с внутренним и внешним рычагом. Это обеспечивает точный баланс во всех положениях маневрирования и соединения.
Преимуществами по сравнению с установками для загрузки шлангов являются:
ДИЗАЙН
ABOUT EMCO WHEATON
For more than 100 years, Emco Wheaton has provided premium fluid transfer systems that are engineered t omeet and exceed the growing demands of our customers across a range of on- and off-shore industries; including gas, chemical, aviation, storage and transportation. We take pride in servicing a global customer base by offering a range of market leading loading and fuel systems that have been engineered using extensive experience, expertise, and a culture of innovation. Backed by our first class service and support, only Emco Wheaton can provide our customers with the quality, safety, and peace of mind needed to help them drive their operations into the future.