How can we help you?

Back to the product list

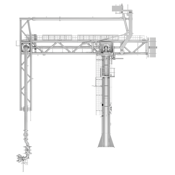
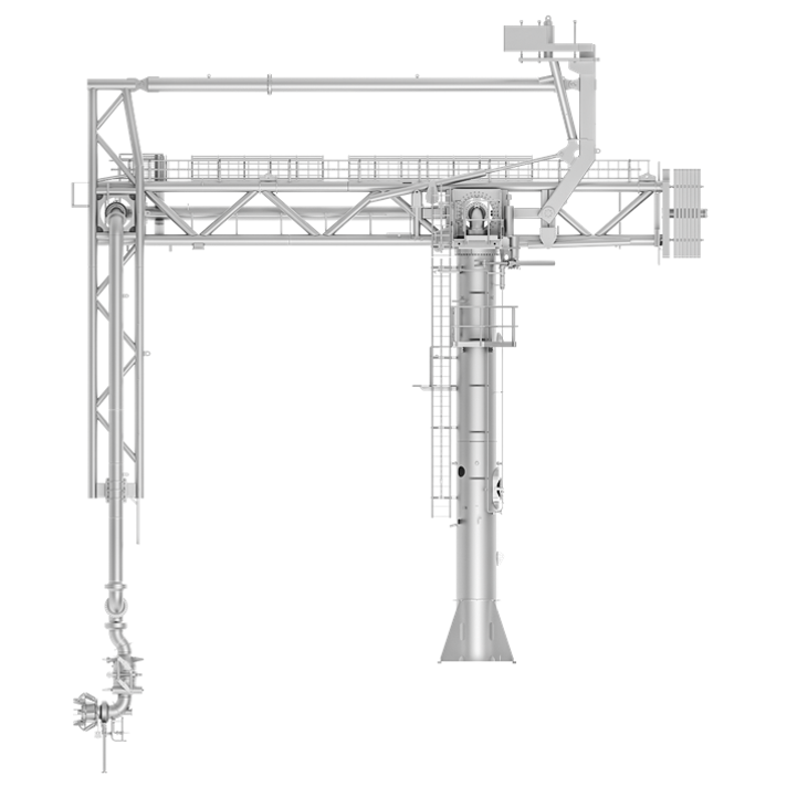
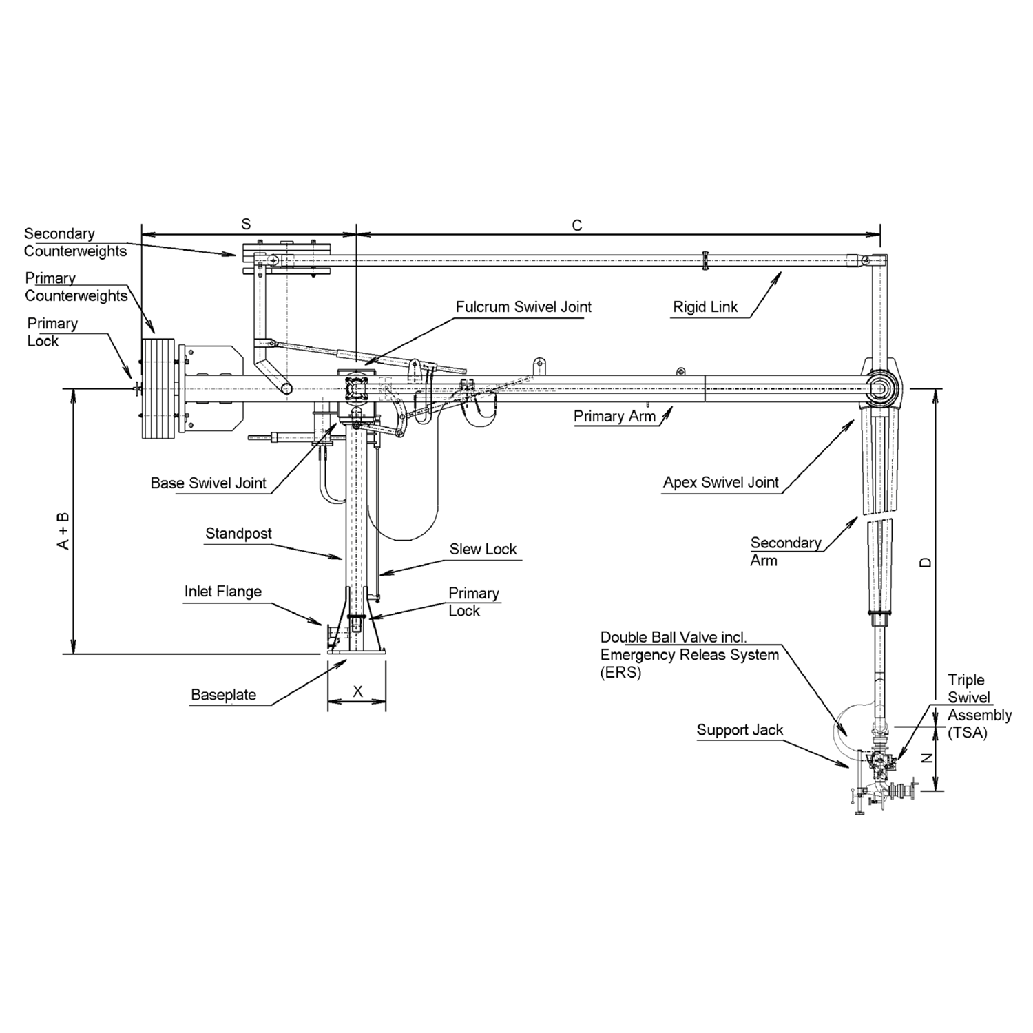
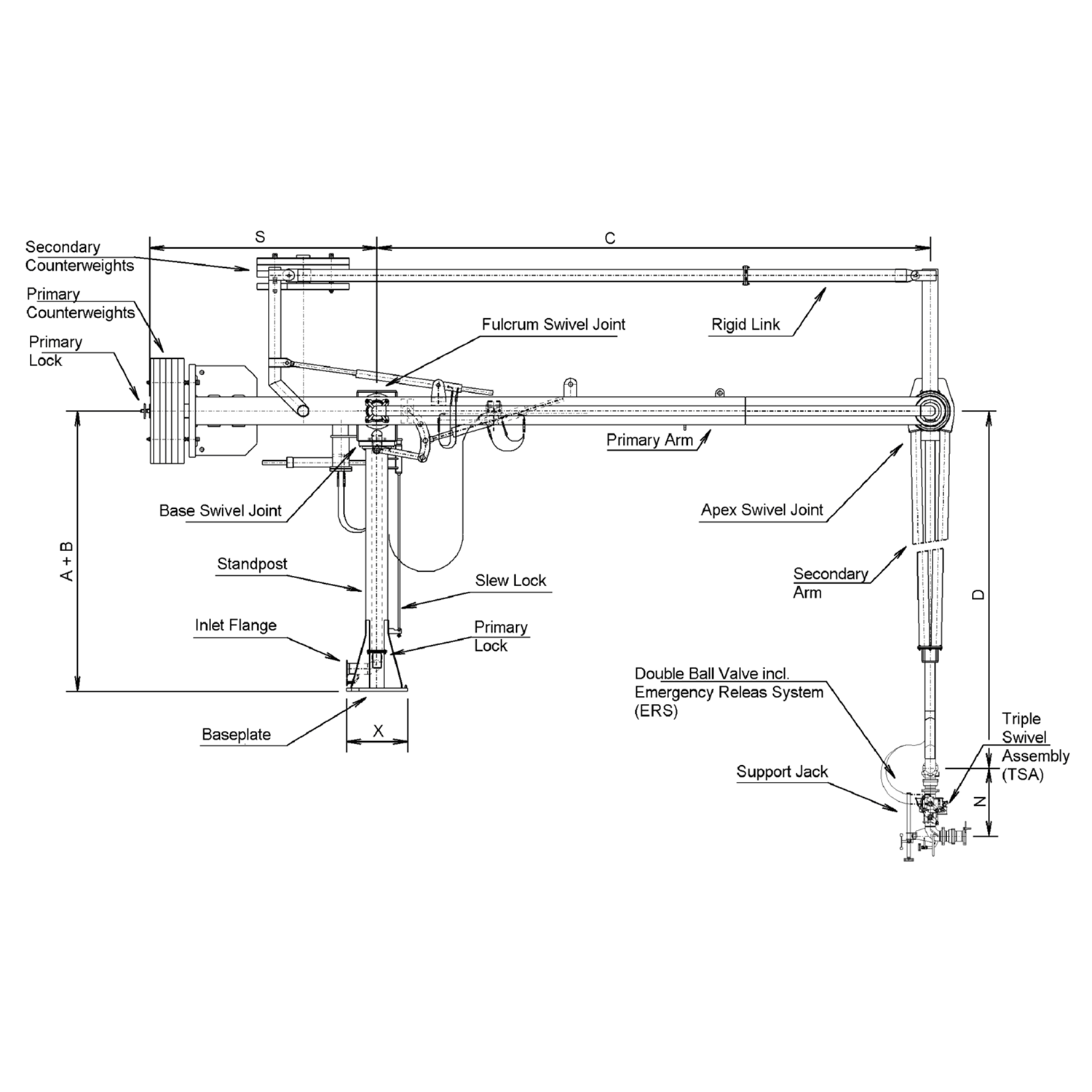
船用装载臂

我们的B0300船用装载臂是为任何因经济或技术原因而必须保持产品管道尺寸一致的应用而设计的,例如温度低至-168°C的低温产品、易拉罐系统和PTFE衬里。

这种设计多年来已经证明了其可靠性。

页面内容

特点

配件

相关产品

规格